top of page


render pergola 1.jpg

render pergola.jpg

1/3
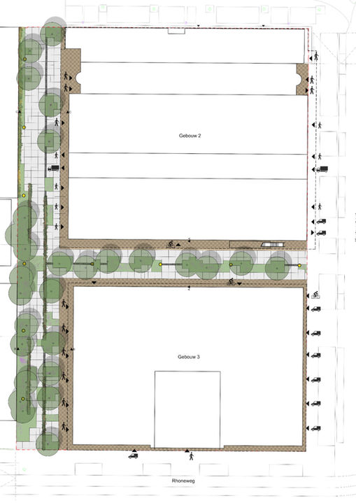
Sloterdijk 2, Amsterdam
Bedrijfsterrein
Opdrachtgever
Ontwerp
In samenwerking met
Grootte
Fotografie
Ovec Multiservice
SBA
2022-2023
Gemeente Amsterdam
0,3 ha
Maatschappelijke thema's
Vergroenen en klimaatadaptie, Sociale cohesie en ontmoeting

bottom of page




